Der moderne Neubau mit Elbblick!

Highlights

  • 2 Penthouse-Wohnungen 
  • 4 Wohnungen im Oberschoß 
  • 4 Wohnungen im Erdgeschoß 
  • Alle EG-Wohnungen haben eine Terrasse
  • Beide Penthouse-Wohnungen haben einen Balkon 
  • Elektrische Rollläden 
  • Fußbodenheizung
  • Vinylböden und Fliesen
  • Einbauküche (Kühlschrank mit Gefrierschrank)
  • Energiesparende Heizung durch Wärmepumpen 
  • Bad Ausführung Premium, Duschbereich mit Duschrinne, Badheizkörper, Fußbodenheizung 
  • Fahrstühle 
  • E-Ladestatione
  • 8 von 10 Wohneinheiten steht 1 Carport zur Verfügung
  • 20 Stellplätze insgesamt

Wohnung Nr. 01

Vergeben

3 Zimmer  93m²

Ausstattung:

Die Erdgeschosswohnung besteht aus 2 Schlafzimmern, einem Hauptbadezimmer und einem Gästebad, sowie einem Hauswirtschaftsraum. Hinzu kommt eine große Wohnküche, mit einer Fläche von über 42m².

Diese Wohnung verfügt darüber hinaus noch über eine Gartenterasse mit Süd-Ost Ausrichtung.

1.200 €  Monatskaltmiete

Wohnung Nr. 02

Verfügbar

3 Zimmer  88m²

Ausstattung:

Die Erdgeschosswohnung besteht aus 2 Schlafzimmern, einem Badezimmer und einem Hauswirtschaftsraum. Hinzu kommt eine große Wohnküche, mit einer Fläche von über 33m².

Diese Wohnung verfügt darüber hinaus noch über eine Gartenterasse mit Süd-Ost Ausrichtung.

1.180 €  Monatskaltmiete

Wohnung Nr. 03

Verfügbar

3 Zimmer  87m²

Ausstattung:

Die Erdgeschosswohnung besteht aus 2 Schlafzimmern, einem Badezimmer und einem Hauswirtschaftsraum. Hinzu kommt eine große Wohnküche, mit einer Fläche von über 33m².

Diese Wohnung verfügt darüber hinaus noch über eine Gartenterasse mit Süd-Ost Ausrichtung.

1.180 €  Monatskaltmiete

Wohnung Nr. 04

Verfügbar

3 Zimmer  93m²

Ausstattung:

Die Erdgeschosswohnung besteht aus 2 Schlafzimmern, einem Hauptbadezimmer und einem Gästebad, sowie einem Hauswirtschaftsraum. Hinzu kommt eine große Wohnküche, mit einer Fläche von über 42m².

Diese Wohnung verfügt darüber hinaus noch über eine Gartenterasse mit Süd-Ost Ausrichtung.

1.230 €  Monatskaltmiete

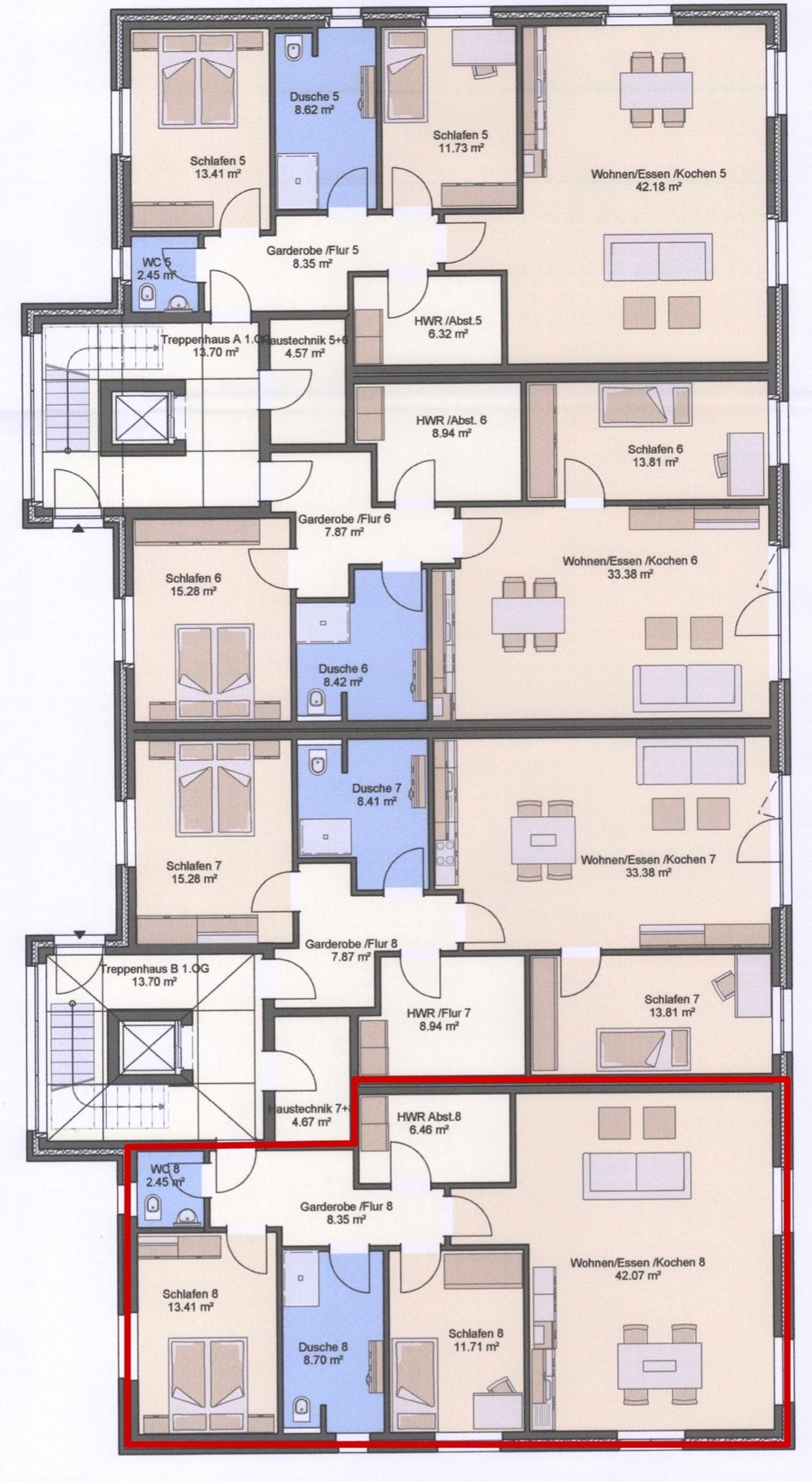
Wohnung Nr. 05

Vergeben

3 Zimmer  93m²

Ausstattung:

Die Obergeschosswohnung besteht aus 2 Schlafzimmern, einem Hauptbadezimmer und einem Gästebad, sowie einem Hauswirtschaftsraum. Hinzu kommt eine große Wohnküche, mit einer Fläche von über 42m². Ebenso verfügt diese Wohnung, wie alle Wohnungen im OG. , über einen Balkon.

Mit Elbblick!

Die Ausrichtung dieser Wohnung gen Norden bietet einen einmaligen Blick über die Elbe.

1.250 € Monatskaltmiete

Wohnung Nr. 06

Verfügbar

3 Zimmer  88m²

Ausstattung:

Die Obergeschosswohnung besteht aus 2 Schlafzimmern, einem Badezimmer, sowie einem Hauswirtschaftsraum. Hinzu kommt eine große Wohnküche, mit einer Fläche von über 33m². Ebenso verfügt diese Wohnung, wie alle Wohnungen im OG. , über einen Balkon.

 

1.170 € Monatskaltmiete

Wohnung Nr. 07

Verfügbar

3 Zimmer  88m²

Ausstattung:

Die Obergeschosswohnung besteht aus 2 Schlafzimmern, einem Badezimmer, sowie einem Hauswirtschaftsraum. Hinzu kommt eine große Wohnküche, mit einer Fläche von über 33m². Ebenso verfügt diese Wohnung, wie alle Wohnungen im OG. , über einen Balkon.

 

1.170 € Monatskaltmiete

Wohnung Nr. 08

Verfügbar

3 Zimmer  93m²

Ausstattung:

Die Obergeschosswohnung besteht aus 2 Schlafzimmern, einem Hauptbadezimmer und einem Gästebad, sowie einem Hauswirtschaftsraum. Hinzu kommt eine große Wohnküche, mit einer Fläche von über 42m². Ebenso verfügt diese Wohnung, wie alle Wohnungen im OG. , über einen Balkon.

 

1.220 € Monatskaltmiete

Penthousewohnung Nr. 1

Vergeben

4 Zimmer 140 m²

Ausstattung:

Diese Penthousewohnung besteht aus 2 großen Schlafzimmern, einem Arbeitszimmer, einem Hauptbadezimmer und einem Gästebad, sowie einem Hauswirtschaftsraum. Hinzu kommt eine große Wohnküche, mit einer Fläche von über 49m². Ebenfalls gehören zu dem Penthouse noch ein Carport, sowie ein weiterer PKW Stellplatz.

Dachterrasse als Highlight!

Die einzigartige Dachterrasse dieses Objektes, über den Dächern Hohnstorfs, bietet einen einmaligen Blick über die Elbe. Um diesen Ausblick genießen zu können, bietet die Terrasse ausreichend Platz für Sitzgelegenheite, oder einen Outdoor Grillplatz zum entspannen.

1.800 € Monatskaltmiete

Penthousewohnung Nr. 2

Vergeben

4 Zimmer 140 m²

Ausstattung:

Diese Penthousewohnung besteht aus 2 großen Schlafzimmern, einem Arbeitszimmer, einem Hauptbadezimmer und einem Gästebad, sowie einem Hauswirtschaftsraum. Hinzu kommt eine große Wohnküche, mit einer Fläche von über 49m². Ebenfalls gehören zu dem Penthouse noch ein Carport, sowie ein weiterer PKW Stellplatz.

Dachterrasse als Highlight!

Die Dachterrasse dieses Objektes, über den Dächern Hohnstorfs, bietet einen weitgehenden Blick über den Ort. Um diesen Ausblick genießen zu können, bietet die Terrasse ausreichend Platz für Sitzgelegenheite, oder einen Outdoor Grillplatz zum entspannen.

1.710 € Monatskaltmiete

Lage

Anschrift: Elbdeich 33, 21522 Hohnstorf

Das Objekt hat eine ruhige Lage, direkt an der Elbe in Hohnstorf. Das Objekt liegt direkt am Deister der Elbe, was den Wohnungen im 1. und 2. OG. einen Traumhaften Ausblick über die Elbe und das gegenüberliegende Städtchen Lauenburg bietet.

Die Gemeinde Hohnstorf ist ein kleines Örtchen, mit einer Einwohnerzahl von nur ca. 2.500 Personen. Mit einer Entfernung von lediglich ca. 25Km zu der Stadt Hamburg, ist dies der Ideale Wohnort für Familien, oder Pendler, die in der nähe einer der schönsten Städte Deutschlands wohnen möchten und dennoch eine ruhige Wohnidylle wünschen. 

In direkter Nähe zu dem Objekt befinden sich genügend Einkaufsmöglichkeiten (u.a. EDEKA, Lidl, Penny, Rewe), die Örtliche Grundschule, sowie eine große Auswahl an Restaurants.

Sie wollen im Zuge dessen ihr Haus verkaufen?

Möchten Sie ihr bisheriges Haus/ ihre bisherige Wohnung verkaufen, um diesen Nebau zu beziehen, so stehen wir ihnen selbstverständlich auch dafür zur Seite! Sie müssen sich so nicht noch die Mühe machen und einen externen Makler für ihr Objekt suchen. Wir übernehmen den Verkauf ihrer Immobilie, damit Sie so genug Zeit haben, um sich auf den Umzug in das Traumhafte Neubauobjekt vorzubereiten. 

Als Qualifizierter Immobilienmakler, können wir alle dazu anfallenden Aufgaben, für Sie übernehmen und sind permanent mit ihnen im Kontakt. Dies ist zum einen eine ausgezeichnete Ausgangslage, für das zukünftige Verhältnis und zum anderen müssen sie keine Vielzahl an Terminen mit einem externen Makler durchstehen, da wir so alles aus einer Hand regeln können! 

Sprechen Sie uns einfach an und wir nehmen Ihnen Ihre Sorgen ab!

Wir benötigen Ihre Zustimmung zum Laden der Übersetzungen

Wir nutzen einen Drittanbieter-Service, um den Inhalt der Website zu übersetzen, der möglicherweise Daten über Ihre Aktivitäten sammelt. Bitte überprüfen Sie die Details in der Datenschutzerklärung und akzeptieren Sie den Dienst, um die Übersetzungen zu sehen.